w66利来最给利的老牌



  • 水泥振动筛

    您的当前位置: 河南w66利来最给利的老牌振动筛厂家 > 产品中心 > 特种筛分筛选机 > 正文

    水泥振动筛

    生产能力:1-300t/h

    应用行业:水泥厂,水泥加工

    价格区间:1000-30000元/台

    产品别称:水泥筛

    厂家直销品质保障闪电发货服务无忧
    24小时免费咨询热线13781984528
    免费获取报价
    水泥振动筛

    水泥振动筛

    水泥筛结构合理,独特新颖,采用振动电机做激振源,物料进行抛掷运动,达到筛分处理的目的,改掉了滚筒筛和连杆往复筛的堵筛,粘网,换网难的缺点,该机广泛用于筛除水泥,石灰及类似的粉状物料的异物,以保证输送设备和包装设备的安全运转。水泥筛是专用于水泥筛分的筛机,也叫做水泥振动筛,该机采用新型的振动电机作直接驱动,筛网结构简单,维修方便,筛网采用高强度金属编织网,经久耐用。

    真机图片

    水泥振动筛

    水泥振动筛

    水泥振动筛

    结构工作原理

    物料从水泥筛上部进料口落入筛网上,筛网框与振动电机固定在一起,所以筛网随着振动电机的振动作近似圆的轨迹运动。物料在筛网上被不断地抛起,并向前下方移动。物料中小于网孔尺寸的粉料及颗粒就穿过筛网落下。而大于网孔尺寸的杂物则从筛面流经排渣口排出,从而完成筛分工作。减振弹簧是为了减少该机对地面的振动力。护网是为了防止安装、维修时的工具或其它物件落入料仓中。 

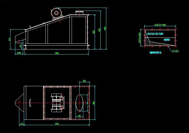
    水泥筛图纸

    型号参数表格

    型号 筛面 给料粒度(m) 处理量(t/h) 振次r.p.m 双振幅(mm) 方向角(°) 振动电机 外型尺寸长×宽×高(mm) 重量(kg)
    面积 倾角 筛孔尺 结构 型号 功率(kw)
    PWSN615 0.9 6 5×5 编织 <20 5-15 960 6 50 YZDP5-6 0.4×2 1700×1145×1120 305
    PWSN815 1.2 15-35 1700×1410×1150 420
    PWSN1020 2 35-50 7 YZDP10-6 0.75×2 2238×1660×1350 758
    PWSN1224 2.88 50-75 8 YZDP20-6 1.5×2 2488×2010×1500 1180
    你也许还需要这些设备!

    直线振动筛分筛选机

    圆振动筛分筛选机

    回转摇摆筛分筛选机

    精细圆形筛分筛选机

    上一篇:焦炭专用筛 下一篇:弛张筛

    振动筛专业厂家-河w66利来最给利的老牌乡鹏威机械厂 技术支持:志远网络

    地 址 :河南省新乡市环宇工业园区 业务电话:13346663698 网址:www.cnshaiji.com 豫ICP备20002553号

    X
    sitemap网站地图